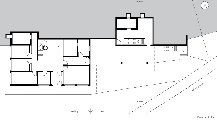
Wohnhaus Erdbeergraben

Sockelgeschoss zum Erdbeergraben
Unter dem auskragenden Baukörper befinden sich die
Auto-Stellplätze. Die Stützmauer
schliesst Keller und Luftschutzraum ein. Über die auskragende
Eingangstreppe wird das
Wohngeschoss erreicht.
Projekte