Wohnhäuser Amselstrasse

Situation /Topographie
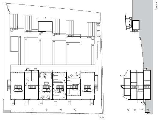
Die Anlage der Häuser profitiert von der Hangsituation. Auf
unterschiedlichen Niveaus entsteht eine Folge von Innen- und
Aussenräumen mit verschiedenen Qualitäten:
Gemeinsamer
Eingangshof, offenes Wohngeschoss, Gartenraum mit leicht
erhöhtem
Atelier als eigenem Vis-à-vis, Carport zur Strasse mit
privatem
Treppenabgang.
Projekte