Engel'sches Gut

Veränderungen
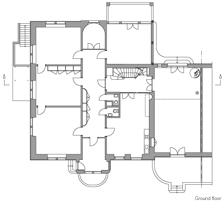
Einbau eines Warenliftes und eines Lagers im Keller. Leichte
Grundrissveränderungen im Erd- und Obergeschoss. Ausbau des
Dachgeschosses zu einer Wohnung. Gesetzlich erforderliche Belichtung
wurde im Dach aus Rücksicht zur historischen Fassade
über
Oblichter gelöst. Die Haustechnik musste möglichst
schonungsvoll in die Räumlichkeiten eingebaut werden.
Projekte